池善ビル 201号室 仙台市太白区泉崎[マンション]

池善ビル 201号室 仙台市太白区泉崎[マンション]

マンション[仙台市太白区泉崎]

三洋住宅産業「太白区、富沢、長町南エリアの賃貸物件検索サイト」

  • 022-244-0205
  • 9:30~18:00/定休日:日曜・祝日・第1・3水曜日

物件詳細

池善ビル 201号室 仙台市太白区泉崎[マンション]

 

池善ビル 201号室 仙台市太白区泉崎[マンション] の物件詳細ページです。

物件種別: マンション

お問い合わせ番号:62555113

間取り(面積)

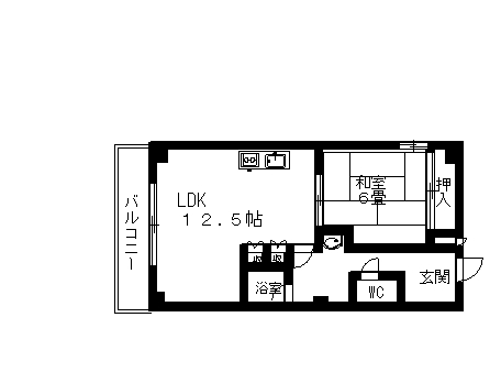
1LDK

( 46.15㎡ )

賃料(管理費等)

4.9万円

( 2000円 )

交通: 仙台地下鉄南北線 富沢駅 徒歩10分

敷金/礼金: 2ヶ月 / 1ヶ月

保証金/敷引/償却金: - / - / -

所在地: 仙台市太白区泉崎

築年月: 1988年1月

ポイント

角部屋・TVインターホン・温水洗浄便座・洗面化粧台・エアコン付

問い合わせ(無料)

TEL: 022-244-0205

お問い合わせ番号: 62555113

QRコード

資料請求などはこちら

問い合わせ(無料)

TEL: 022-244-0205

お問い合わせ番号: 62555113

セールスポイント

特徴 2F以上,角住戸,保証人(要)
設備 バス・トイレ別,シャワー,温水洗浄便座,洗面台,エアコン,TVインターホン,ガス給湯,フローリング,室内洗濯機置場,押入,ガス(プロパン),下水(公共下水),水道(公営),電気
天井高 空調 1基
部屋外設備 バルコニー
駐車場 駐車場:要問い合わせ
周辺施設 コンビニ:セブンイレブン 仙台富沢2丁目店 193m
ドラッグストア:ツルハドラッグ 長町南店 667m
ショッピング施設:イオンタウン仙台富沢 815m
ショッピング施設:三井ショッピングパーク ララガーデン長町 1328m
郵便局:仙台泉崎郵便局 244m
総合病院:新井川内科クリニック 226m
銀行:山形銀行泉崎支店 418m
公園:富沢公園 480m
レストラン:登喜和そば処 44m
レストラン:やきとり大吉泉崎店 193m

物件概要

物件名 池善ビル 201号室
物件所在地 宮城県仙台市太白区泉崎1丁目32-6 周辺地図
交通機関 仙台地下鉄南北線 富沢駅 徒歩10分
仙台地下鉄南北線 長町南駅 徒歩18分
間取り詳細 LDK(12.5畳) 和室(6畳)
専有面積 46.15㎡
所在階/地上階数 2 / 3 部屋向き
建物構造 鉄筋コンクリート 築年月 1988年1月
総戸数 0
賃料 4.9万円 管理費等 2000円
敷金 2ヶ月 礼金 1ヶ月
積増し敷金 - 積増し理由
損害保険 有 料金:20000円 損保期間:24ヶ月 
契約形態 普通借家契約 期間 契約期間:2年
現況 入居時期 即時 
入居条件 ペット(不可)
備考 洗面化粧台、エアコン、洗浄機能対便座、TVモニターインターホン

その他

取引態様 仲介元付(一般) 自社管理番号 62555113
情報更新日 2026年4月25日 次回更新予定日 2026年5月10日
不動産会社コード 2105447 物件管理コード 935000000003487807
  • ※間取りの「S」はサービスルーム(納戸)です。
  • ※QRコードは(株)デンソーウェーブの登録商標です。

資料請求などはこちら

問い合わせ(無料)

TEL: 022-244-0205

お問い合わせ番号: 62555113

お問い合わせ先:三洋住宅産業株式会社 本社

所在地 : 宮城県仙台市太白区泉崎1丁目1-18
TEL : 022-244-0205
免許番号 : 宮城県知事(11)第2045号
加盟団体 : 公益財団法人日本賃貸住宅管理業協会

この部屋を見学予約

ホームへ戻る

Copyright © Sanyo House Industry Co.,Ltd. All Rights Reserved