サンライズ 仙台市太白区長町南[マンション]

サンライズ 仙台市太白区長町南[マンション]

マンション[仙台市太白区長町南]

三洋住宅産業「太白区、富沢、長町南エリアの賃貸物件検索サイト」

  • 022-244-0205
  • 9:30~18:00/定休日:日曜・祝日・第1・3水曜日

棟詳細

サンライズ 仙台市太白区長町南 マンション

サンライズ 仙台市太白区長町南[マンション]の棟詳細ページです。

物件種別:マンション

間取り(面積)

1K~1DK

( 32.4㎡~40.26㎡)

賃料

5.2万円~5.6万円

交通: 仙台地下鉄南北線 長町南駅 徒歩9分

所在地: 仙台市太白区長町南

築年月: 2006年1月

管理費等の月次金がかかることがあります。詳細は各部屋のページでご確認ください。

ポイント

LPG・追焚機能付給湯・オートロック・洗髪洗面化粧台・温水洗浄便座・エアコン・最上階角部屋


  • ※代表的なお部屋の写真と物件情報になります。タイプによっては一部仕様・眺望等が異なる場合があります。
  • ※お部屋により現況と異なる場合は現況を優先いたします。



所在地 宮城県仙台市太白区長町南3丁目20-2 周辺地図
交通 仙台地下鉄南北線 長町南駅 徒歩9分
賃料 5.2万円~5.6万円
築年月 2006年1月 (築19年)
建物構造 鉄骨 登録空きフロア計 72.66㎡ (21.97坪)
総戸数 10戸 規模 4階建/ -



所在階 賃料 管理費/共益費 敷金/礼金 間取り 専有面積 詳細

4階 5.2万円

-

/ 2000円

1ヶ月

/ 1ヶ月

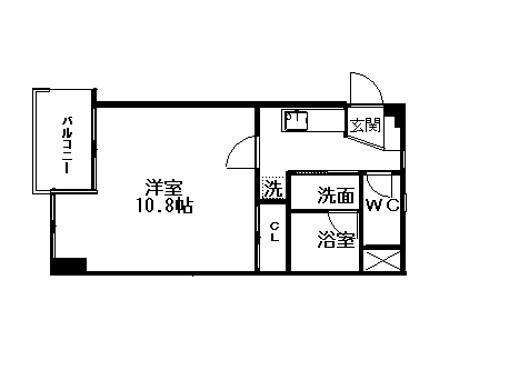
1K

32.4㎡

(9.8坪)

サンライズ の詳細ページ

1階 5.6万円

-

/ 2000円

2ヶ月

/ 1ヶ月

1DK

40.26㎡

(12.17坪)

サンライズ 102号室の詳細ページ


  • ※間取りの「S」はサービスルーム(納戸)です。

ホームへ戻る

Copyright © Sanyo House Industry Co.,Ltd. All Rights Reserved